mountain house

project type: private residential

location: thunder bay, ontario

year: 2025

size: 3000 sf

 

project OVERVIEW:

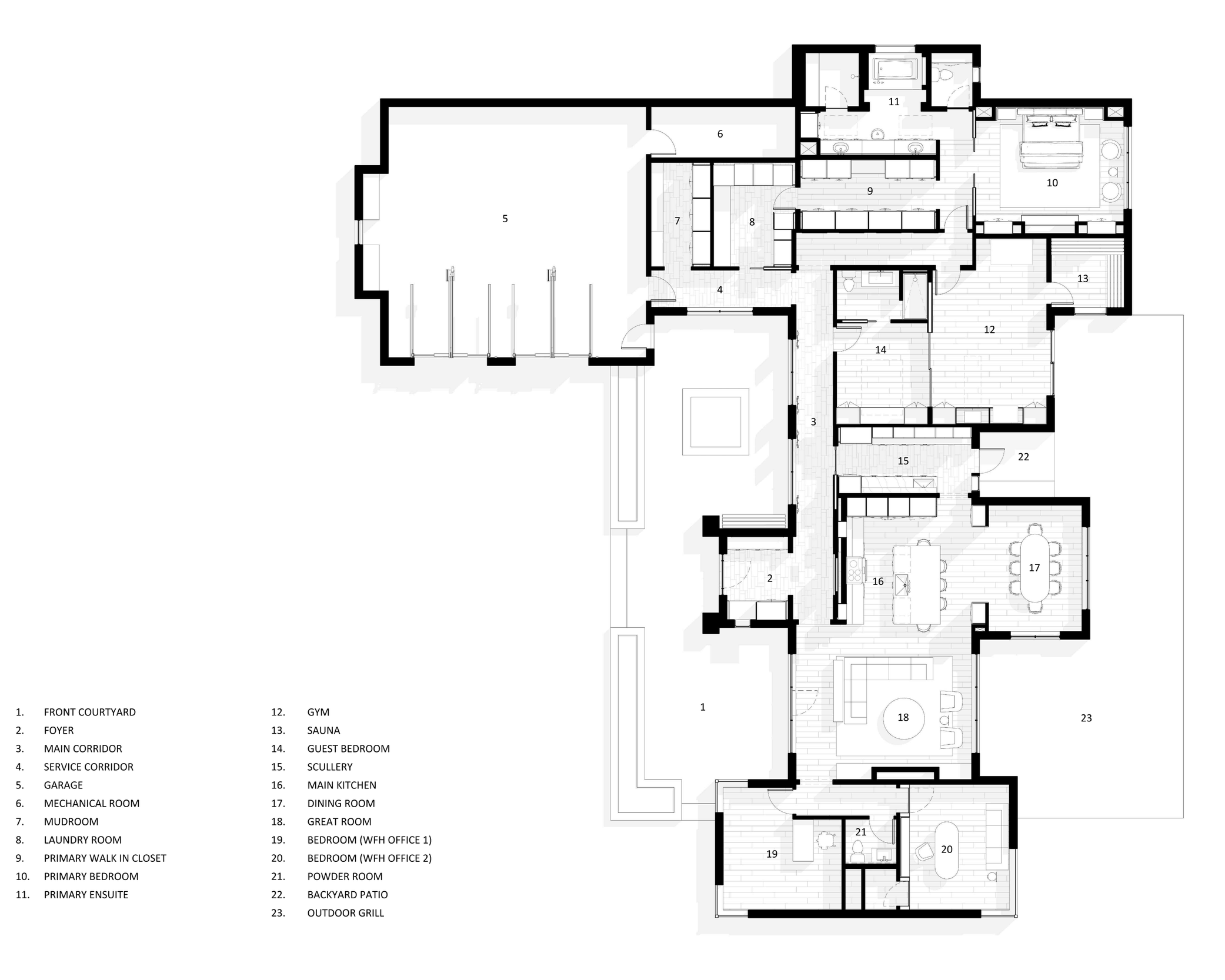
Nestled against a panoramic escarpment, Mountain House is a legacy home for an established couple and their maturing family. The large front courtyard and main entry created a point of arrival that focused on a strong first impression and welcoming approach. Flanked by softscape and seating areas, the home takes advantage of natural light and views beyond to experience the landscape from different vantages. Flexible schedules and work-from-home environments required secondary sleep quarters to be multi-functional while large, open & connected entertaining spaces made it easy for the clients to host friends and family visiting. An attached scullery connects the main corridor, kitchen and outdoor grill area; concealing mess and meal prep during holidays & other gatherings.

Split into wings & centred around the entertaining spaces, the primary sleeping quarters includes a separate access corridor for privacy, a large walk-in-closet connected to the home’s laundry, fully equipped ensuite, and private sleep quarters anchored by a gas- fireplace & direct views of the escarpment. The flexible home gym adjacent, provides the owners quick access to a flexible room that can be segmented for additional sleeping quarters, while providing equipment storage, open floor space, a cold plunge & sauna.